当前位置:首页  资料内容详情

某工程辐流式沉淀池设计平面、剖面图

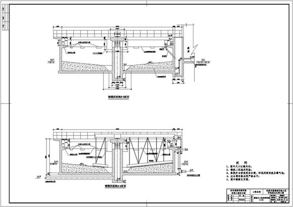
某工程辐流式沉淀池设计平面、剖面图 某工程辐流式沉淀池设计平面、剖面图 某印染小区印染废水处理工程辐流式二沉池平面图、剖面图、设备清单及图纸说明,图纸刮吸泥机为半桥式周边传动刮吸泥机。

某工程辐流式沉淀池设计平面、剖面图

声明:本站为网络服务提供者及网络索引服务平台资源索引自网络/用户分享,如有版权问题,请联系站方删除。

不能下载?报告错误