当前位置:首页  资料内容详情

某酒店客房标准间电气大样图(普通控制)

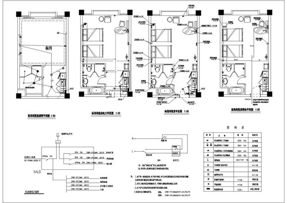
某酒店客房标准间电气大样图(普通控制) 常见酒店标准间电气大样图,弱电点位结合甲方使用要求确定。虽然图纸内容仅为一间标准间布置,但是照明、插座、弱电均包含,而且注解比较详细,可以供初学者学习参考。

某酒店客房标准间电气大样图(普通控制)

声明:本站为网络服务提供者及网络索引服务平台资源索引自网络/用户分享,如有版权问题,请联系站方删除。

不能下载?报告错误