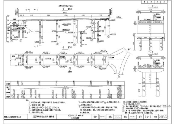
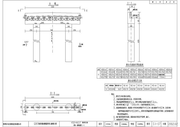
某1-20米预应力空心板梁桥结构施工图 某1-20米预应力空心板梁桥结构施工图 某1-20米预应力空心板梁桥结构施工图 1-20米预应力空心板梁桥施工图,本桥上部结构采用5x20m预应力混凝土简支空心板,下部结构0号台采用U型台+桩基,5号桥台和桥墩采用桩柱式墩台,钻孔灌注桩基础。图纸包括:桥梁总体布置图,墩台桩位坐标
20米预应力空心板梁桥结构施工图
某1-20米预应力空心板梁桥结构施工图 某1-20米预应力空心板梁桥结构施工图 某1-20米预应力空心板梁桥结构施工图 1-20米预应力空心板梁桥施工图,本桥上部结构采用5x20m预应力混凝土简支空心板,下部结构0号台采用U型台+桩基,5号桥台和桥墩采用桩柱式墩台,钻孔灌注桩基础。图纸包括:桥梁总体布置图,墩台桩位坐标
20米预应力空心板梁桥结构施工图