当前位置:首页  资料内容详情

2个比较特色而经典的钢结构廊架施工图

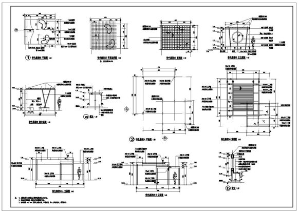
2个比较特色而经典的钢结构廊架施工图 2个比较特色而经典的钢结构廊架施工图,内容包括平面图、立面图、顶视图,具体做法,其风格可以供大家参考。

2个比较特色而经典的钢结构廊架施工图

声明:本站为网络服务提供者及网络索引服务平台资源索引自网络/用户分享,如有版权问题,请联系站方删除。

不能下载?报告错误