
带斜拉杆钢结构玻璃雨篷(含节点详图)

带斜拉杆钢结构玻璃雨篷(含节点详图)
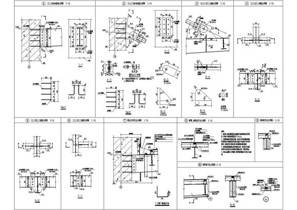
本图纸为一带斜拉杆钢结构玻璃雨篷,雨篷钢梁与混凝土梁柱连接通过预埋件采用高强螺栓连接,雨篷梁上为玻璃骨架方钢管,玻璃骨架方钢管之间及与钢梁之间均采用单面角焊缝连接,玻璃骨架方钢管上为双层钢化夹胶玻璃。

带斜拉杆钢结构玻璃雨篷(含节点详图)

带斜拉杆钢结构玻璃雨篷(含节点详图)
本图纸为一带斜拉杆钢结构玻璃雨篷,雨篷钢梁与混凝土梁柱连接通过预埋件采用高强螺栓连接,雨篷梁上为玻璃骨架方钢管,玻璃骨架方钢管之间及与钢梁之间均采用单面角焊缝连接,玻璃骨架方钢管上为双层钢化夹胶玻璃。
声明:资源收集自网络或用户分享,仅供学习参考,如侵犯您的权益,请联系我们处理。
不能下载?报告错误