
某小区三层住宅建筑设计户型平面图

某小区三层住宅建筑设计户型平面图

某小区三层住宅建筑设计户型平面图
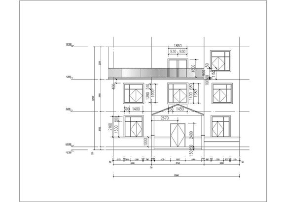
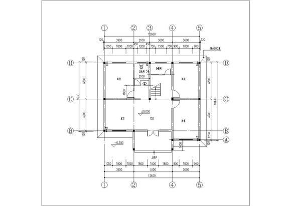
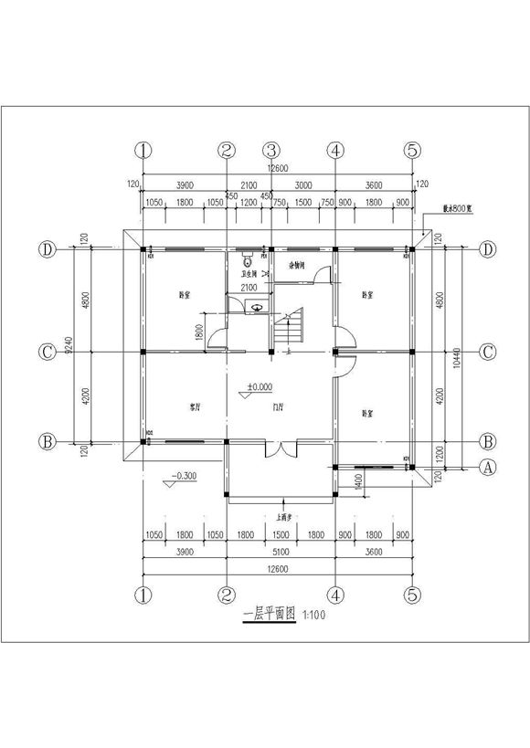
该图纸为某小区三层住宅建筑设计户型平面图,带大露台设计,户型设计可做别墅也可改装成家庭小旅馆,首层的门厅设计,也适合新农村住宅设计,用地比较规则,房间采光和通风还可以。

某小区三层住宅建筑设计户型平面图

某小区三层住宅建筑设计户型平面图

某小区三层住宅建筑设计户型平面图
该图纸为某小区三层住宅建筑设计户型平面图,带大露台设计,户型设计可做别墅也可改装成家庭小旅馆,首层的门厅设计,也适合新农村住宅设计,用地比较规则,房间采光和通风还可以。
声明:资源收集自网络或用户分享,仅供学习参考,如侵犯您的权益,请联系我们处理。
不能下载?报告错误