规范网
更新
当前位置:
规范网
资料
内容详情
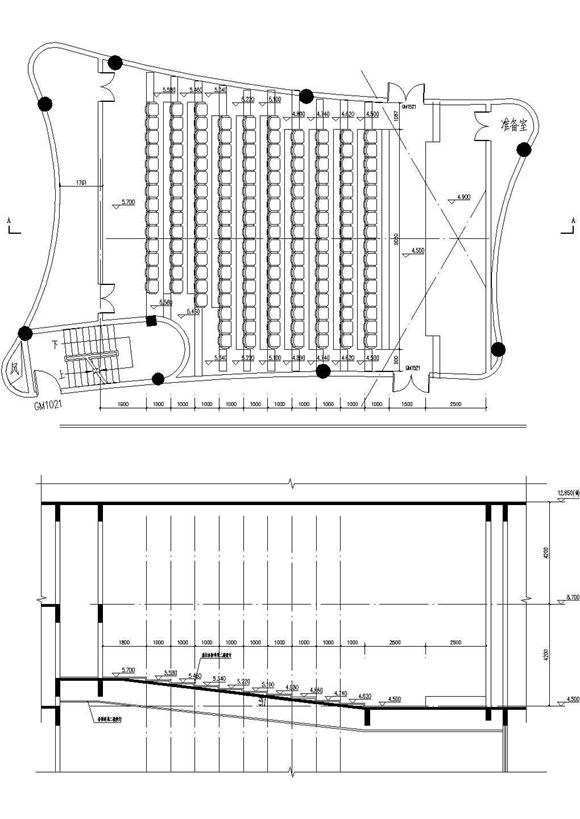
刚做的一个阶梯教室详图,含剖面
刚做的一个阶梯教室详图,含剖面
刚做的一个阶梯教室详图,有剖面视线分析,给大家一个参考
加入收藏
下载文件
声明:资源收集自网络或用户分享,仅供学习参考,如侵犯您的权益,请联系我们处理。
不能下载?报告错误
下页:
螺栓规格型号尺寸图
相关推荐
坡面屋顶阵列前后间距计算和遮挡物影长计算公式V1.1
光伏专用电缆选型计算,汇流箱至逆变器电缆选型计算,短路电流计算,组串数量计算
风力发电经济评价模型案例
风电 水电效益测算分析表
分布式光伏工程报价参考计算表格
刚做的一个阶梯教室详图,含剖面
下载文件
免费下载
标签
园林
15j401
16s518
11zj901
质量管理体系标准
实习报告
学校领导讲话稿
活动总结
轻工业规范
测绘规范
申请书模板
钢结构标准
有色金属规范
城镇建设规范
图集
广播电影电视规范
内蒙古自治区标准
浙江省标准
文物保护规范
15j403-1
江西省标准
辽宁省标准
民政规范
汽车规范
动平衡标准
项目总结
动力学
销售总结