规范网
更新
当前位置:
首页
资料
内容详情
木龙骨构造及节点详图
帮助
举报
收藏
上传文档
下载
预览图
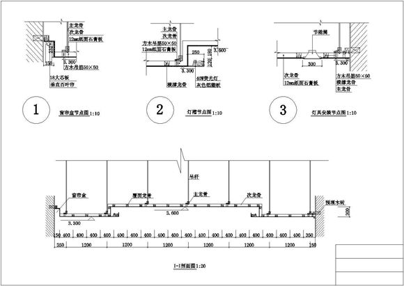
木龙骨构造及节点详图 里面有木龙骨吊顶剖面图以及三个节点详图。
木龙骨构造及节点详图
收藏
下载
声明:本站为网络服务提供者及网络索引服务平台资源索引自网络/用户分享,如有版权问题,请
联系
站方删除。
不能下载?报告错误
下页:
全隐框玻璃幕墙节点图(CAD)
相关推荐
QGDW 11656-2025 配电线路金具技术规范
QGDW 11646-2025 7.2kV40.5kV绝缘管型母线技术规范
QGDW 11250.3-2025 中压开关技术规范 第3部分 中压开关柜
QGDW 11250.2-2025 中压开关技术规范 第2部分 环网柜(箱)
QGDW 10393.3-2025 变电站设计规范 第3部分 220kV变电站
木龙骨构造及节点详图
下载
免费下载
用户名称:
-哄哄6184
注册时间:
2024-04-29
认证方式:
手机认证
资源帮助
上传文档
标签
天津市标准
航天规范
陕西省标准
汽车规范
02j331
气象规范
轻工业规范
10j301
水利
农业规范
手册
河北省标准
12j003
认证认可规范
企业工作计划
设计图
中心孔标准
给排水
方案
单位通知
转正申请
信息总结
河南省标准
iec标准
旅游规范
焊接标准
工业标准
食品添加剂标准