
单层工业厂房课程设计施工CAD参考图

单层工业厂房课程设计施工CAD参考图

单层工业厂房课程设计施工CAD参考图
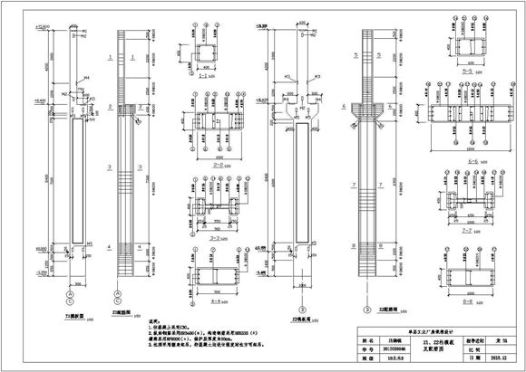
本工程为单层工业厂房课程设计施工CAD参考图,包含基础平面布置图、基础底板配筋图、基础平面布置图等,图纸内容完整,表达清晰,制图严谨,欢迎设计师下载使用。

单层工业厂房课程设计施工CAD参考图

单层工业厂房课程设计施工CAD参考图

单层工业厂房课程设计施工CAD参考图
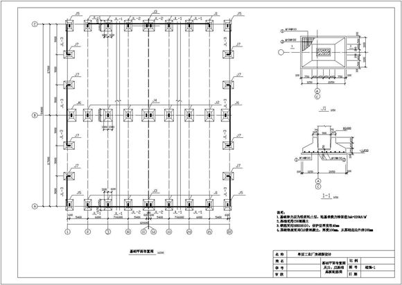
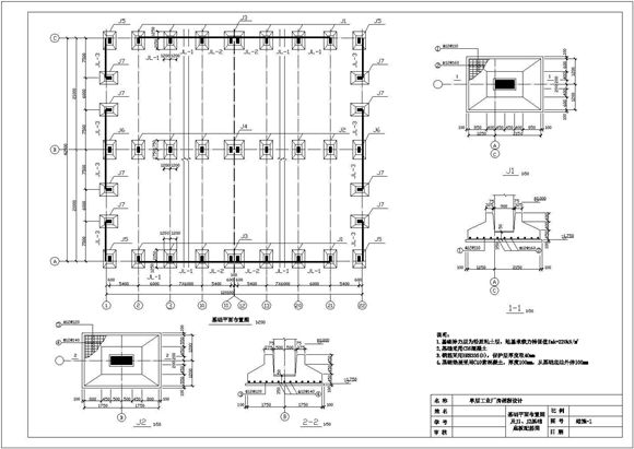
本工程为单层工业厂房课程设计施工CAD参考图,包含基础平面布置图、基础底板配筋图、基础平面布置图等,图纸内容完整,表达清晰,制图严谨,欢迎设计师下载使用。
声明:资源收集自网络或用户分享,仅供学习参考,如侵犯您的权益,请联系我们处理。
不能下载?报告错误