
BAF曝气生物滤池工艺流程图(毕业设计)

BAF曝气生物滤池工艺流程图(毕业设计)

BAF曝气生物滤池工艺流程图(毕业设计)
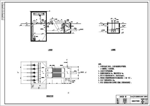
该图纸包含了曝气生物滤池的工艺流程图,安装示意图,管道铺设图,平面布置图,高程布置图,并且附带详细的构筑物尺寸。

BAF曝气生物滤池工艺流程图(毕业设计)

BAF曝气生物滤池工艺流程图(毕业设计)

BAF曝气生物滤池工艺流程图(毕业设计)
该图纸包含了曝气生物滤池的工艺流程图,安装示意图,管道铺设图,平面布置图,高程布置图,并且附带详细的构筑物尺寸。
声明:资源收集自网络或用户分享,仅供学习参考,如侵犯您的权益,请联系我们处理。
不能下载?报告错误