
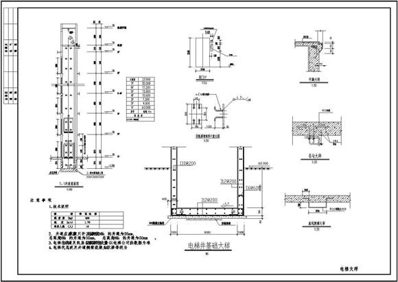
一般家用电梯井结构设计施工图(含大样图)
本实用新型采用以钢代木,取消现有技术外模板采用的水平支撑、横撑及斜撑,整个井模能重复使用,为电梯井模板的施工机械化创造条件。图纸包括:建筑剖面图、基础结构图、节点详图和技术说明等。

一般家用电梯井结构设计施工图(含大样图)
本实用新型采用以钢代木,取消现有技术外模板采用的水平支撑、横撑及斜撑,整个井模能重复使用,为电梯井模板的施工机械化创造条件。图纸包括:建筑剖面图、基础结构图、节点详图和技术说明等。
声明:资源收集自网络或用户分享,仅供学习参考,如侵犯您的权益,请联系我们处理。
不能下载?报告错误