当前位置:首页  资料内容详情

某污水厂紫外线消毒池工艺设计全套图纸

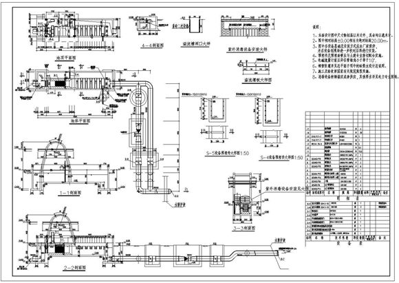
某污水厂紫外线消毒池工艺设计全套图纸 本图纸为:紫外线消毒池的施工工艺图纸,内含:平面图、剖面图,紫外线消毒设备安装大样图,设备预埋件大样图等。

某污水厂紫外线消毒池工艺设计全套图纸

声明:本站为网络服务提供者及网络索引服务平台资源索引自网络/用户分享,如有版权问题,请联系站方删除。

不能下载?报告错误