
某制冷库设计图纸(含设计说明+实用)

某制冷库设计图纸(含设计说明+实用)

某制冷库设计图纸(含设计说明+实用)
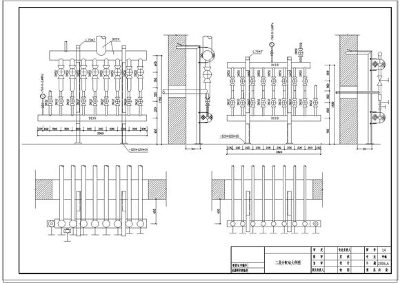
本资料为:制冷库设计图包括机房平面图、机房操作平台底部平面图、剖面、屋面蒸发式冷凝器剖面图、库房一层平面图、设备基础大样图、一层分配站大样图、机房预留洞口、吊点平面图等。

某制冷库设计图纸(含设计说明+实用)

某制冷库设计图纸(含设计说明+实用)

某制冷库设计图纸(含设计说明+实用)
本资料为:制冷库设计图包括机房平面图、机房操作平台底部平面图、剖面、屋面蒸发式冷凝器剖面图、库房一层平面图、设备基础大样图、一层分配站大样图、机房预留洞口、吊点平面图等。
声明:资源收集自网络或用户分享,仅供学习参考,如侵犯您的权益,请联系我们处理。
不能下载?报告错误