当前位置:首页  资料内容详情

运动场地的铅球场施工图及详细做法

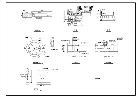
运动场地的铅球场施工图及详细做法 此为铅球场的详细做法,内容包具体尺寸,详细做法1、塑胶跑道颜色均匀一致,各种道线、点线颜色均匀一致、清晰、鲜艳,无明显虚边。各种道线宽窄尺寸准确。

运动场地的铅球场施工图及详细做法

声明:本站为网络服务提供者及网络索引服务平台资源索引自网络/用户分享,如有版权问题,请联系站方删除。

不能下载?报告错误