
某多层砖混结构住宅楼建筑毕业设计图

某多层砖混结构住宅楼建筑毕业设计图

某多层砖混结构住宅楼建筑毕业设计图
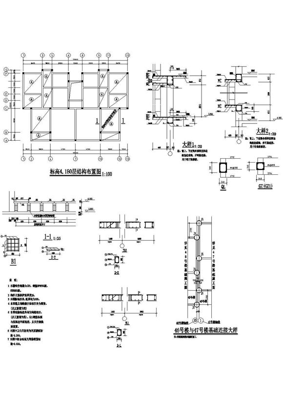
该图纸为某多层砖混结构住宅楼建筑毕业设计图,内容包含建筑设计说明,各层平面图,屋顶平面图,各立面图,各剖面图,楼梯详图,节点详图,门窗表,结构设计图等。

某多层砖混结构住宅楼建筑毕业设计图

某多层砖混结构住宅楼建筑毕业设计图

某多层砖混结构住宅楼建筑毕业设计图
该图纸为某多层砖混结构住宅楼建筑毕业设计图,内容包含建筑设计说明,各层平面图,屋顶平面图,各立面图,各剖面图,楼梯详图,节点详图,门窗表,结构设计图等。
声明:资源收集自网络或用户分享,仅供学习参考,如侵犯您的权益,请联系我们处理。
不能下载?报告错误