当前位置:首页  资料内容详情

终端型美式箱变外形图及基础图

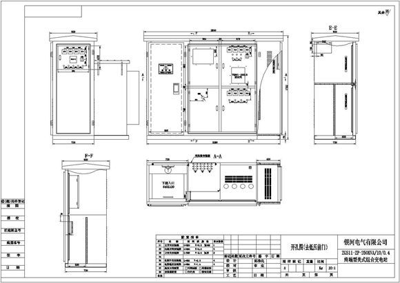
终端型美式箱变外形图及基础图 终端型美式箱变外形图及基础图 终端型美式箱变外形图及基础图 美式箱变外形图及基础图,一次系统图,及外形图,基础图,安装,图纸包含了台基建设施工图,开孔图(去低压前门)

终端型美式箱变外形图及基础图

声明:本站为网络服务提供者及网络索引服务平台资源索引自网络/用户分享,如有版权问题,请联系站方删除。

不能下载?报告错误