规范网
更新
当前位置:
规范网
资料
内容详情
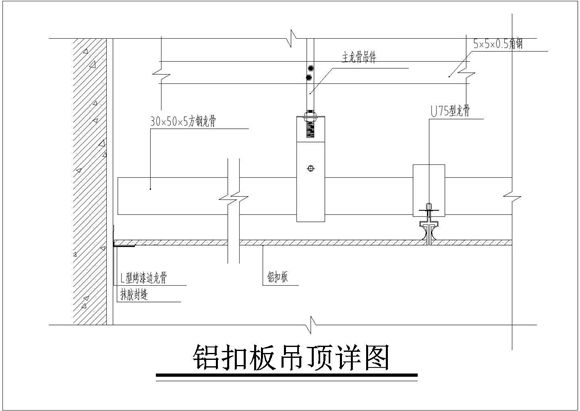
铝扣板吊顶安装大样图
铝扣板吊顶安装大样图
为某办公室天花铝扣板吊顶安装大样图,包含丝杆,铝扣板,各种辅料构成。
加入收藏
下载文件
声明:资源收集自网络或用户分享,仅供学习参考,如侵犯您的权益,请联系我们处理。
不能下载?报告错误
下页:
超级详细通用建筑图库cad图块大全
相关推荐
室内设计方案合同(范本)
铝扣板吊顶安装大样图
下载文件
免费下载
标签
客服总结
气象规范
福建省标准
铆钉标准
食用盐标准
单位通知
动平衡标准
黑龙江省标准
有色金属规范
安全标准
新疆维吾尔自治区标准
广西省标准
动力学
噪声标准
包装规范
航天规范
钢丝螺套标准
不锈钢管标准
地质矿产规范
广播电影电视规范
司法规范
iec标准
自我评价
安全带标准
指导性国家标准
垫片标准
林业规范
公司总结