当前位置:首页  资料内容详情

某煤场挡风抑尘墙图

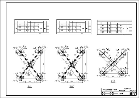
某煤场挡风抑尘墙图 某煤场挡风抑尘墙图 某煤场挡风抑尘墙图 本工程为某煤场挡风抑尘墙图,包含钢结构设计和施工说明、平面布置图、大门立面结构图等,图纸内容完整,表达清晰,制图严谨,欢迎设计师下载使用。

某煤场挡风抑尘墙图

声明:本站为网络服务提供者及网络索引服务平台资源索引自网络/用户分享,如有版权问题,请联系站方删除。

不能下载?报告错误