
非常好用的几款服务台和吧台cad详图

非常好用的几款服务台和吧台cad详图

非常好用的几款服务台和吧台cad详图
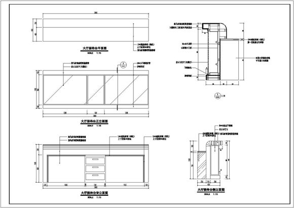
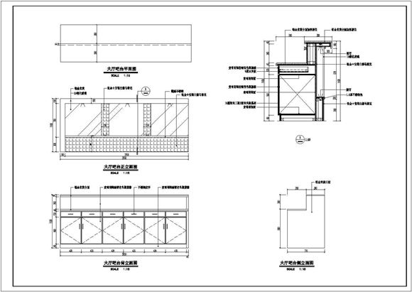
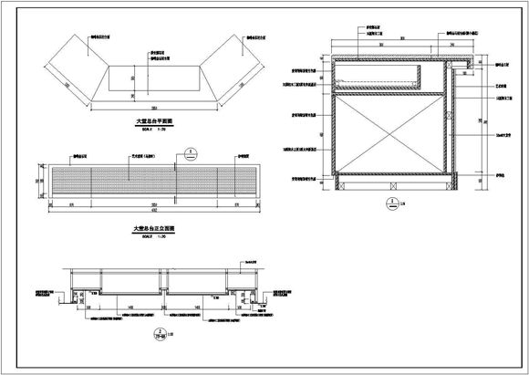
本图纸非常好用的几款服务台和吧台cad详图,图纸有三款服务台图,大堂服务台平面、正背侧立面,大厅带台平面、正背侧立面,服务台平面、内外立面和剖面。共三款,仅供参考。

非常好用的几款服务台和吧台cad详图

非常好用的几款服务台和吧台cad详图

非常好用的几款服务台和吧台cad详图
本图纸非常好用的几款服务台和吧台cad详图,图纸有三款服务台图,大堂服务台平面、正背侧立面,大厅带台平面、正背侧立面,服务台平面、内外立面和剖面。共三款,仅供参考。
声明:资源收集自网络或用户分享,仅供学习参考,如侵犯您的权益,请联系我们处理。
不能下载?报告错误