当前位置:首页  资料内容详情

某工程防雷接地大样图

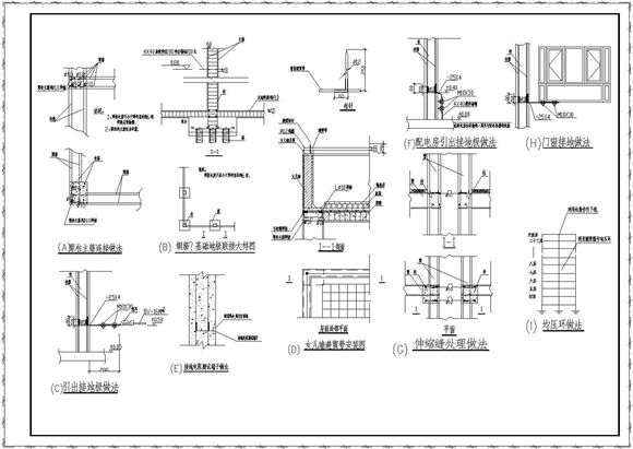
某工程防雷接地大样图 某工程的梁柱主筋连接做法,钢筋砼基础地极联接大样图,引出接地极做法,女儿墙避雷带安装图,接地电阻测试端子做法,配电房引出接地极做法,伸缩缝处理做法,均压环做法等

某工程防雷接地大样图

声明:本站为网络服务提供者及网络索引服务平台资源索引自网络/用户分享,如有版权问题,请联系站方删除。

不能下载?报告错误