
预制装配式外墙及楼梯图纸(含详细设计说明)

预制装配式外墙及楼梯图纸(含详细设计说明)

预制装配式外墙及楼梯图纸(含详细设计说明)
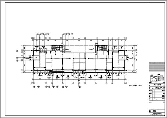
北京某装配式剪力墙结构设计图纸,内含各专业一次设计图纸和二次补充深化设计的构件加工图纸及预制构件设计说明,图纸作为初学者参考学习使用。

预制装配式外墙及楼梯图纸(含详细设计说明)

预制装配式外墙及楼梯图纸(含详细设计说明)

预制装配式外墙及楼梯图纸(含详细设计说明)
北京某装配式剪力墙结构设计图纸,内含各专业一次设计图纸和二次补充深化设计的构件加工图纸及预制构件设计说明,图纸作为初学者参考学习使用。
声明:资源收集自网络或用户分享,仅供学习参考,如侵犯您的权益,请联系我们处理。
不能下载?报告错误