
楼梯做法大样(非常全)

楼梯做法大样(非常全)

楼梯做法大样(非常全)
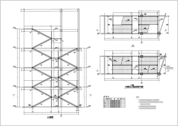
本图为楼梯做法参考图,包括几十种楼梯的结构做法大样,36种钢筋混凝土楼梯,24种钢楼梯,有双跑楼梯,三跑楼梯,四跑楼梯,圆弧楼梯,自动扶梯,儿童滑梯等等!

楼梯做法大样(非常全)

楼梯做法大样(非常全)

楼梯做法大样(非常全)
本图为楼梯做法参考图,包括几十种楼梯的结构做法大样,36种钢筋混凝土楼梯,24种钢楼梯,有双跑楼梯,三跑楼梯,四跑楼梯,圆弧楼梯,自动扶梯,儿童滑梯等等!
声明:资源收集自网络或用户分享,仅供学习参考,如侵犯您的权益,请联系我们处理。
不能下载?报告错误