当前位置:首页  资料内容详情

屋顶太阳能发电支架结构设计图

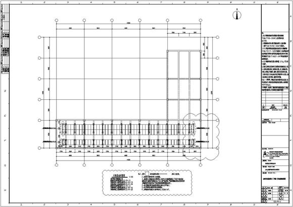
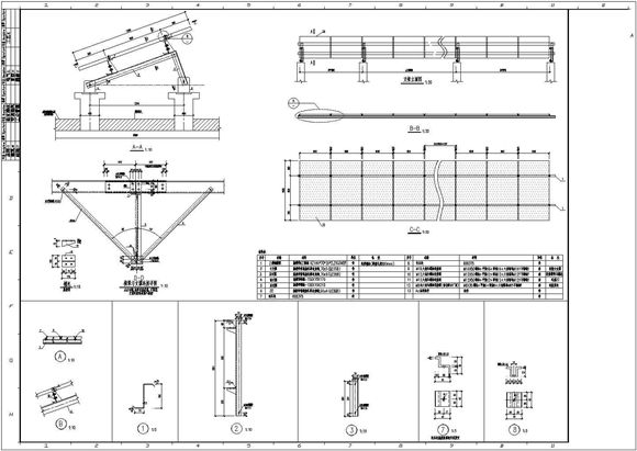
屋顶太阳能发电支架结构设计图 屋顶太阳能发电支架结构设计图 屋顶太阳能发电支架结构设计图 太阳能钢结构支架施工图,包括钢支架连接节点,化学锚栓与屋顶连接节点,及相关说明,可供参考。

屋顶太阳能发电支架结构设计图

声明:本站为网络服务提供者及网络索引服务平台资源索引自网络/用户分享,如有版权问题,请联系站方删除。

不能下载?报告错误