当前位置:首页  资料内容详情

旅游景区公共厕所建筑设计图纸

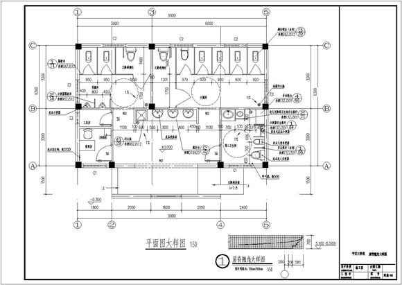
旅游景区公共厕所建筑设计图纸 旅游景区公共厕所建筑设计图纸 旅游景区公共厕所建筑设计图纸 本图纸为旅游景区公共厕所建筑设计图纸,图纸内容包括:设计说明,平面图,立面图等,可供参考。

旅游景区公共厕所建筑设计图纸

声明:本站为网络服务提供者及网络索引服务平台资源索引自网络/用户分享,如有版权问题,请联系站方删除。

不能下载?报告错误