规范网
更新
当前位置:
规范网
资料
内容详情
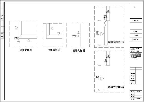
典型石材干挂节点及石材工艺做法CAD图纸
典型石材干挂节点及石材工艺做法CAD图纸
典型石材干挂节点及石材工艺做法CAD图纸
典型石材干挂节点及石材工艺做法CAD图纸
典型的石材干挂做法,石材阴阳角衔接方式,横缝处理方式等,
加入收藏
下载文件
声明:资源收集自网络或用户分享,仅供学习参考,如侵犯您的权益,请联系我们处理。
不能下载?报告错误
下页:
涵洞设计标准CAD样图
相关推荐
坡面屋顶阵列前后间距计算和遮挡物影长计算公式V1.1
光伏专用电缆选型计算,汇流箱至逆变器电缆选型计算,短路电流计算,组串数量计算
风力发电经济评价模型案例
风电 水电效益测算分析表
分布式光伏工程报价参考计算表格
典型石材干挂节点及石材工艺做法CAD图纸
下载文件
免费下载
标签
地震规范
电气安全标准
螺纹标准
幼儿园工作计划
牛奶标准
人事总结
党员总结
石油化工规范
船舶规范
公司总结
紧固件标准
矿泉水标准
海关规范
安全带标准
型钢标准
汽车规范
安全标准
弱电
螺栓标准
交通运输规范
个人总结
供销合作规范
测绘规范
文物保护规范
北京市标准
讲话稿
重庆市标准
文化规范