规范网
更新
当前位置:
规范网
资料
内容详情
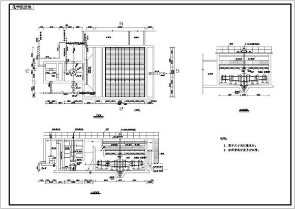
高效混凝沉淀池设计图
高效混凝沉淀池设计图
图纸包括高效混凝沉淀池平面图、剖面图,可供参考。
加入收藏
下载文件
声明:资源收集自网络或用户分享,仅供学习参考,如侵犯您的权益,请联系我们处理。
不能下载?报告错误
下页:
别墅区CAD总平面布置图
相关推荐
坡面屋顶阵列前后间距计算和遮挡物影长计算公式V1.1
光伏专用电缆选型计算,汇流箱至逆变器电缆选型计算,短路电流计算,组串数量计算
风力发电经济评价模型案例
风电 水电效益测算分析表
分布式光伏工程报价参考计算表格
高效混凝沉淀池设计图
下载文件
免费下载
标签
社会实践报告
体育规范
无缝钢管标准
邮政规范
包装规范
电影规范
宁夏回族自治区标准
广东省标准
转正申请
园林
教育规范
四川省标准
管螺纹标准
上海市标准
手册
安全标准
医院工作计划
12j201
螺栓标准
不锈钢标准
质量管理体系标准
粉煤灰标准
钢管标准
城镇建设规范
学校方案
紧固件标准
公司总结
角钢标准