
某地工厂车间照明设计图(共8张)

某地工厂车间照明设计图(共8张)

某地工厂车间照明设计图(共8张)
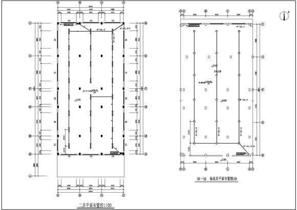
本标题为某地工厂车间照明设计图(共8张),其内容包括:~轴底层平面布置图,~轴底层平面布置图等仅供参考。

某地工厂车间照明设计图(共8张)

某地工厂车间照明设计图(共8张)

某地工厂车间照明设计图(共8张)
本标题为某地工厂车间照明设计图(共8张),其内容包括:~轴底层平面布置图,~轴底层平面布置图等仅供参考。
声明:资源收集自网络或用户分享,仅供学习参考,如侵犯您的权益,请联系我们处理。
不能下载?报告错误