
钢结构连廊(滑动支座)及观光电梯结构图

钢结构连廊(滑动支座)及观光电梯结构图

钢结构连廊(滑动支座)及观光电梯结构图
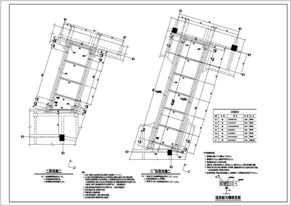
本工程所在地为四川省成都市,包括钢结构连廊及观光电梯钢结构。抗震设防烈度为7度。图纸包括:钢结构设计施工总说明,二、三、四、屋面连廊结构图,节点大样图,观光电梯剖面图,结构详图等共计9张图。

钢结构连廊(滑动支座)及观光电梯结构图

钢结构连廊(滑动支座)及观光电梯结构图

钢结构连廊(滑动支座)及观光电梯结构图
本工程所在地为四川省成都市,包括钢结构连廊及观光电梯钢结构。抗震设防烈度为7度。图纸包括:钢结构设计施工总说明,二、三、四、屋面连廊结构图,节点大样图,观光电梯剖面图,结构详图等共计9张图。
声明:资源收集自网络或用户分享,仅供学习参考,如侵犯您的权益,请联系我们处理。
不能下载?报告错误