当前位置:首页  资料内容详情

室外钢梯及室内楼梯设计方案图纸

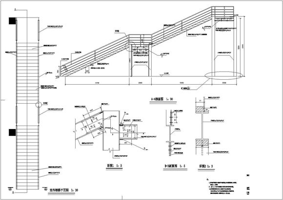
室外钢梯及室内楼梯设计方案图纸 室外钢梯及室内楼梯设计方案图纸 钢梯和楼梯设计方案,图纸共有两张,包括室外钢梯设计图、室内楼梯设计图,以及节点详图,供下载参考。

室外钢梯及室内楼梯设计方案图纸

声明:本站为网络服务提供者及网络索引服务平台资源索引自网络/用户分享,如有版权问题,请联系站方删除。

不能下载?报告错误