规范网
更新
当前位置:
规范网
资料
内容详情
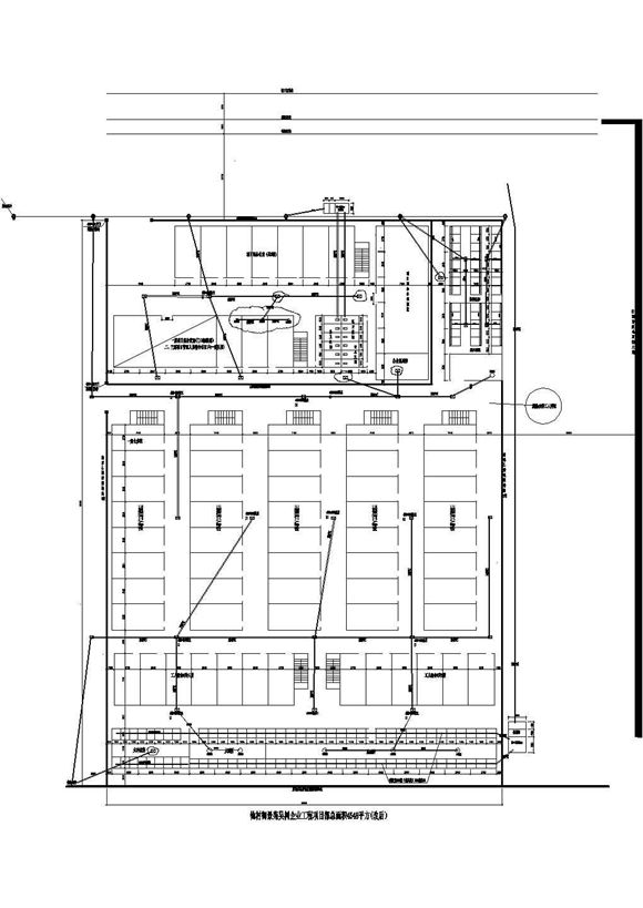
某企业工程项目部生活区布置平面图
某企业工程项目部生活区布置平面图
某企业工程项目部生活区布置方案,图纸共一张,为平面布置图,供下载参考。
加入收藏
下载文件
声明:资源收集自网络或用户分享,仅供学习参考,如侵犯您的权益,请联系我们处理。
不能下载?报告错误
下页:
城市月子会所装修设计平面图(总平图)
相关推荐
BIM技术应用实务 建筑方案设计罗志华、李刚 2019版
建筑方案设计图册(下册) (1998版)
建筑方案设计图册(上册) (1998版)
云南农村住房 云南省农村住房建筑方案设计竞赛获奖作品集1 (2007版)
建筑方案设计/建筑设计系列丛书
某企业工程项目部生活区布置平面图
下载文件
免费下载
标签
平键标准
供销合作规范
11zj901
教育随笔
煤炭规范
物资管理规范
水利
安全生产
项目总结
热电偶标准
江西省标准
核工业规范
教师发言稿
钢结构标准
17J927-1
矿泉水标准
人防
家长会发言稿
管螺纹标准
弱电
稀土规范
江苏省标准
建筑
活动总结
中心孔标准
财务总结
自我评价
城市道路