
小型泵站全套设计CAD图18张(2014年)

小型泵站全套设计CAD图18张(2014年)

小型泵站全套设计CAD图18张(2014年)
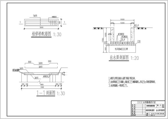
1.本图单位:尺寸.管径以毫米计,标高(珠基)以米计。2.设计标准:a.泵站排水标准:流量0.37立方米/s,扬程3.56m,配套功率22kw。b.设计灌溉面积3500亩。3.工程规模:泵站规模:设计

小型泵站全套设计CAD图18张(2014年)

小型泵站全套设计CAD图18张(2014年)

小型泵站全套设计CAD图18张(2014年)
1.本图单位:尺寸.管径以毫米计,标高(珠基)以米计。2.设计标准:a.泵站排水标准:流量0.37立方米/s,扬程3.56m,配套功率22kw。b.设计灌溉面积3500亩。3.工程规模:泵站规模:设计
声明:资源收集自网络或用户分享,仅供学习参考,如侵犯您的权益,请联系我们处理。
不能下载?报告错误