规范网
更新
当前位置:
规范网
资料
内容详情
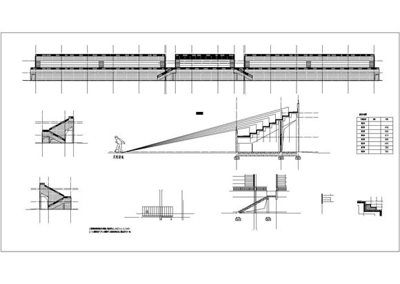
体育场看台设计及视线分析图
体育场看台设计及视线分析图
体育场看台设计及视线分析图
体育场看台设计及视线分析图
本图纸为体育场看台设计及视线分析图,图纸内容可供参考,欢迎下载。
加入收藏
下载文件
声明:资源收集自网络或用户分享,仅供学习参考,如侵犯您的权益,请联系我们处理。
不能下载?报告错误
下页:
某阻火圈安装设计CAD图
相关推荐
体育馆用木质地板优质工程评价要求 (T/CWPIA 11-2023)
大学体育馆显示屏工程脚手架专项施工方案
某大学体育馆施工组织设计
体育馆活动场地租赁协议
体育馆长期租赁合同
体育场看台设计及视线分析图
下载文件
免费下载
标签
05s502
管道标准
采购总结
环境保护规范
国密密码规范
学校方案
工程总结
客服总结
旅游规范
民用航空规范
气象规范
行政总结
锻件标准
角钢标准
新闻出版规范
铁路运输规范
信息总结
水利规范
食品添加剂标准
劳动和劳动安全规范
测绘规范
工作通知
思想汇报
食用油标准
离职申请
06ms201-3
邮政规范
物资管理规范