当前位置:首页  资料内容详情

10KV厂用电压互感器接线图(含设备表)

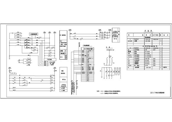
10KV厂用电压互感器接线图(含设备表) 本图纸为10KV厂用电压互感器接线图(含设备表),内容包括:10KV厂用电压互感器接线图等内容,可供参考。

10KV厂用电压互感器接线图(含设备表)

声明:本站为网络服务提供者及网络索引服务平台资源索引自网络/用户分享,如有版权问题,请联系站方删除。

不能下载?报告错误