

某工厂钢结构生产厂房全套施工图(共11张)

某工厂钢结构生产厂房全套施工图(共11张)

某工厂钢结构生产厂房全套施工图(共11张)
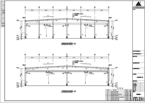
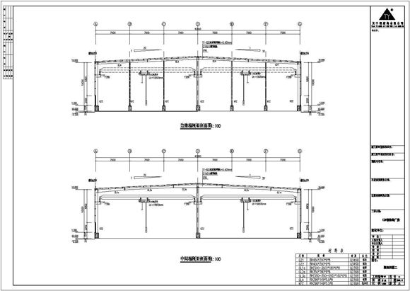
本图纸为某工厂钢结构生产厂房全套施工图,包含屋顶平面布置图、轴立面图、底层平面布置图等11张图在内,仅供参考。


某工厂钢结构生产厂房全套施工图(共11张)

某工厂钢结构生产厂房全套施工图(共11张)

某工厂钢结构生产厂房全套施工图(共11张)
本图纸为某工厂钢结构生产厂房全套施工图,包含屋顶平面布置图、轴立面图、底层平面布置图等11张图在内,仅供参考。
声明:资源收集自网络或用户分享,仅供学习参考,如侵犯您的权益,请联系我们处理。
不能下载?报告错误