当前位置:首页  资料内容详情

600*600*800电缆手孔井原理图

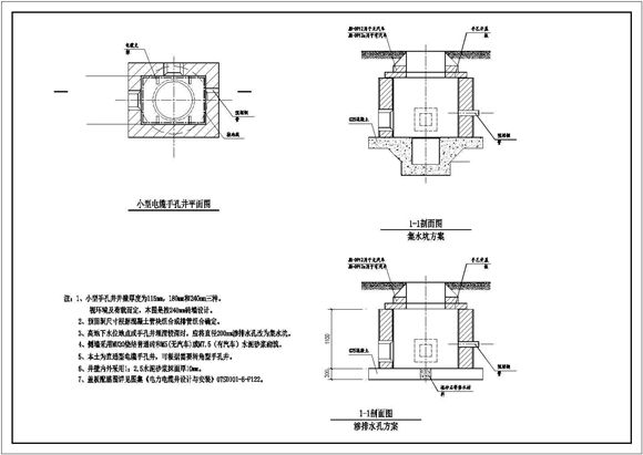
600*600*800电缆手孔井原理图 本图纸为600*600*800电缆手孔井原理图,包括小型电缆手孔井平面图、渗排水孔方案剖面图、集水坑方案剖面图等图纸,可供参考。

600*600*800电缆手孔井原理图

声明:本站为网络服务提供者及网络索引服务平台资源索引自网络/用户分享,如有版权问题,请联系站方删除。

不能下载?报告错误