当前位置:首页  资料内容详情

某高层公寓楼平面设计图(共8张)

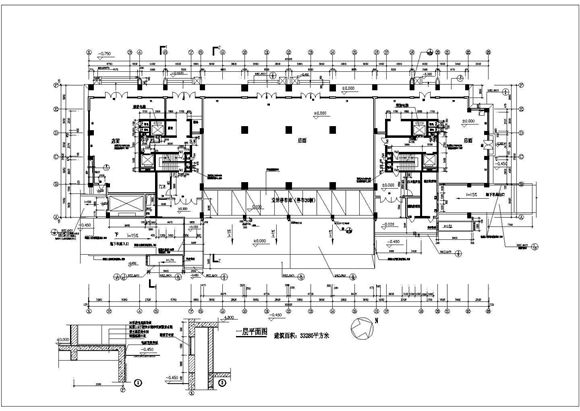
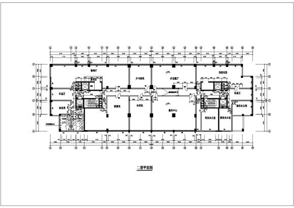
某高层公寓楼平面设计图(共8张) 某高层公寓楼平面设计图(共8张) 某高层公寓楼平面设计图(共8张) 某高层公寓楼平面设计图。该图纸共有8张,其中包括一层平面图、二十一层平面图等图。内容详细,可供参考。

某高层公寓楼平面设计图(共8张)

声明:本站为网络服务提供者及网络索引服务平台资源索引自网络/用户分享,如有版权问题,请联系站方删除。

不能下载?报告错误