
智能化住宅系统设计施工图纸(共14张)

智能化住宅系统设计施工图纸(共14张)

智能化住宅系统设计施工图纸(共14张)
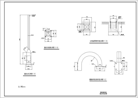
本图纸为,智能化住宅系统设计施工图纸,内容包括,大样图,系统图,设计说明等,可供参考。

智能化住宅系统设计施工图纸(共14张)

智能化住宅系统设计施工图纸(共14张)

智能化住宅系统设计施工图纸(共14张)
本图纸为,智能化住宅系统设计施工图纸,内容包括,大样图,系统图,设计说明等,可供参考。
声明:资源收集自网络或用户分享,仅供学习参考,如侵犯您的权益,请联系我们处理。
不能下载?报告错误