
某地区小型超市建筑设计图(共7张)

某地区小型超市建筑设计图(共7张)

某地区小型超市建筑设计图(共7张)
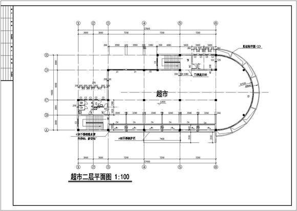
本图纸为某地区小型超市建筑设计图(共7张),其内容包括:超市屋顶平面图、超市二层平面图、剖面详图等。内容详实,可供参考。

某地区小型超市建筑设计图(共7张)

某地区小型超市建筑设计图(共7张)

某地区小型超市建筑设计图(共7张)
本图纸为某地区小型超市建筑设计图(共7张),其内容包括:超市屋顶平面图、超市二层平面图、剖面详图等。内容详实,可供参考。
声明:资源收集自网络或用户分享,仅供学习参考,如侵犯您的权益,请联系我们处理。
不能下载?报告错误