
某小型工作室室内装修设计施工图(共8张)

某小型工作室室内装修设计施工图(共8张)

某小型工作室室内装修设计施工图(共8张)
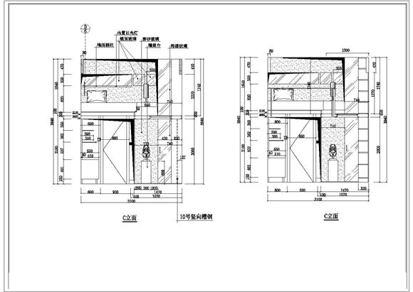
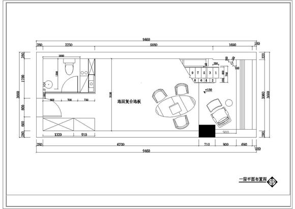
本图纸为:某小型工作室室内装修设计施工图,内容包括各层平面布置图,楼梯剖面图,立面图等共8张,内容详细,可供参考。

某小型工作室室内装修设计施工图(共8张)

某小型工作室室内装修设计施工图(共8张)

某小型工作室室内装修设计施工图(共8张)
本图纸为:某小型工作室室内装修设计施工图,内容包括各层平面布置图,楼梯剖面图,立面图等共8张,内容详细,可供参考。
声明:资源收集自网络或用户分享,仅供学习参考,如侵犯您的权益,请联系我们处理。
不能下载?报告错误