
某小学教学楼各教室平面布置(共4张)

某小学教学楼各教室平面布置(共4张)

某小学教学楼各教室平面布置(共4张)
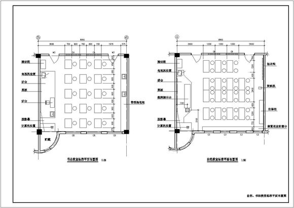
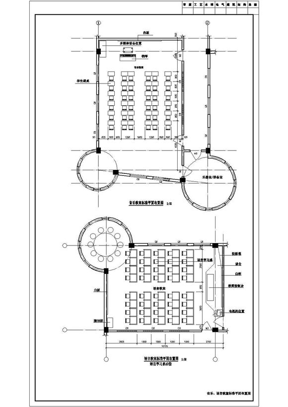
本资料为某小学教学楼各教室平面布置(共4张),其包含的内容为平面图,普通教室标准平面布置图2,普通教室标准平面布置图1,语言教室标准平面布置图等仅供参考

某小学教学楼各教室平面布置(共4张)

某小学教学楼各教室平面布置(共4张)

某小学教学楼各教室平面布置(共4张)
本资料为某小学教学楼各教室平面布置(共4张),其包含的内容为平面图,普通教室标准平面布置图2,普通教室标准平面布置图1,语言教室标准平面布置图等仅供参考
声明:资源收集自网络或用户分享,仅供学习参考,如侵犯您的权益,请联系我们处理。
不能下载?报告错误