
水电布置图及插座布置图(共7张)

水电布置图及插座布置图(共7张)

水电布置图及插座布置图(共7张)
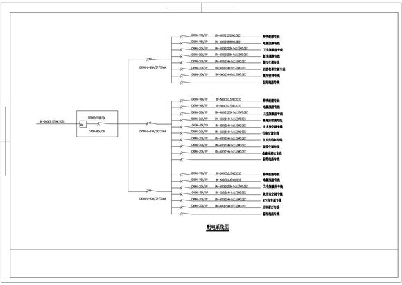
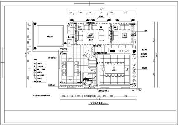
本图纸为:水电布置图及插座布置图(共7张),内容包括:二层插座布置图、三层插座布置图、三层电路布置图、二层电路布置图、首层电路布置图等,可供参考。

水电布置图及插座布置图(共7张)

水电布置图及插座布置图(共7张)

水电布置图及插座布置图(共7张)
本图纸为:水电布置图及插座布置图(共7张),内容包括:二层插座布置图、三层插座布置图、三层电路布置图、二层电路布置图、首层电路布置图等,可供参考。
声明:资源收集自网络或用户分享,仅供学习参考,如侵犯您的权益,请联系我们处理。
不能下载?报告错误