规范网
更新
当前位置:
规范网
资料
内容详情
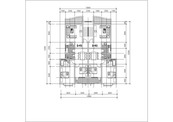
各式住宅户型平面大样图(共87张)
各式住宅户型平面大样图(共87张)
各式住宅户型平面大样图(共87张)
各式住宅户型平面大样图(共87张)
本图纸为各式住宅户型平面大样图(共87张),内容详细,可供参考。
加入收藏
下载文件
声明:资源收集自网络或用户分享,仅供学习参考,如侵犯您的权益,请联系我们处理。
不能下载?报告错误
下页:
一系列全套家装CAD模块素材库(实用)
相关推荐
住宅小区安全防范系统运维服务规范 (DB34/T 4977-2025)
住宅小区微型消防站建设管理规范 (DB3207/T 2039-2025)
住宅小区保安服务规范 (DB3402/T 76-2024)
住宅小区电动汽车充电设施建设管理规范 (DB4403/T 525-2024)
津17D20图集 住宅小区安全防范系统
各式住宅户型平面大样图(共87张)
下载文件
免费下载
标签
江西省标准
河北省标准
弱电
技术总结
广播电影电视规范
林业规范
电源线标准
建筑材料规范
河南省标准
个人总结
不锈钢管标准
供销合作规范
有色金属规范
体育规范
酒店工作计划
通信规范
照明标准
平垫圈标准
上海市标准
行政总结
陕西省标准
质量管理体系标准
环境保护规范
听课报告
疏水阀标准
土地管理规范
纺织规范
电气安全标准