
一万多平方大型农贸市场、菜市场综合楼建筑设计图(带总平图)

一万多平方大型农贸市场、菜市场综合楼建筑设计图(带总平图)

一万多平方大型农贸市场、菜市场综合楼建筑设计图(带总平图)
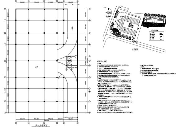
一万多平方大型农贸市场、菜市场综合楼建筑设计图(带总平图),图纸设计非常细致,包括建筑各个角度立面图,各楼层平面图,剖面图,总平面图,细节大样图等,供大家下载参考。

一万多平方大型农贸市场、菜市场综合楼建筑设计图(带总平图)

一万多平方大型农贸市场、菜市场综合楼建筑设计图(带总平图)

一万多平方大型农贸市场、菜市场综合楼建筑设计图(带总平图)
一万多平方大型农贸市场、菜市场综合楼建筑设计图(带总平图),图纸设计非常细致,包括建筑各个角度立面图,各楼层平面图,剖面图,总平面图,细节大样图等,供大家下载参考。
声明:资源收集自网络或用户分享,仅供学习参考,如侵犯您的权益,请联系我们处理。
不能下载?报告错误