规范网
更新
当前位置:
规范网
资料
内容详情
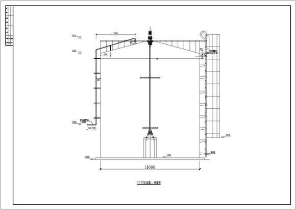
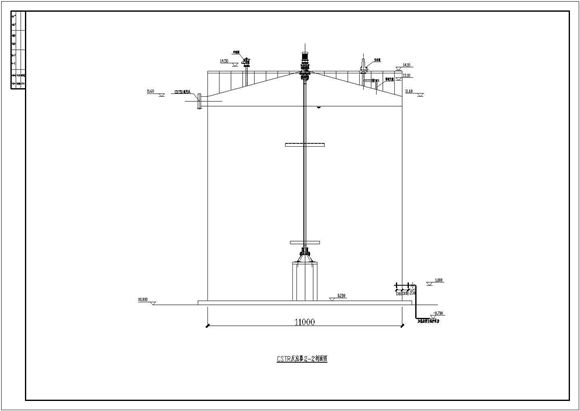
人畜粪便专业大型沼气池设计图纸cad
人畜粪便专业大型沼气池设计图纸cad
人畜粪便专业大型沼气池设计图纸cad
人畜粪便专业大型沼气池设计图纸cad
本图纸为人畜粪便专业大型沼气池设计图纸cad,因地制宜仅供参考。
加入收藏
下载文件
声明:资源收集自网络或用户分享,仅供学习参考,如侵犯您的权益,请联系我们处理。
不能下载?报告错误
下页:
50张常用钢结构节点标准大样图纸
相关推荐
BIM技术应用实务 建筑方案设计罗志华、李刚 2019版
建筑方案设计图册(下册) (1998版)
建筑方案设计图册(上册) (1998版)
云南农村住房 云南省农村住房建筑方案设计竞赛获奖作品集1 (2007版)
建筑方案设计/建筑设计系列丛书
人畜粪便专业大型沼气池设计图纸cad
下载文件
免费下载
标签
交通运输规范
线材标准
钢球标准
电气设备标准
西藏藏族自治区标准
浙江省标准
06ms201-3
稀土规范
机关单位工作计划
学校方案
新闻出版规范
听课报告
城市轨道
工程总结
船舶规范
学期总结
噪声标准
图集
活动总结
申请书模板
山西省标准
轻工业规范
出差申请
食用盐标准
15j401
照明标准
教学计划
16s518