规范网
更新
当前位置:
规范网
资料
内容详情
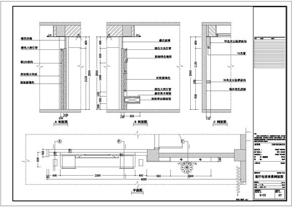
客厅电视背景墙立面图剖面图详图
客厅电视背景墙立面图剖面图详图
客厅电视背景墙立面图剖面图详图
本图纸为客厅电视背景墙立面图剖面图详图,因地制宜仅供参考。
加入收藏
下载文件
声明:资源收集自网络或用户分享,仅供学习参考,如侵犯您的权益,请联系我们处理。
不能下载?报告错误
下页:
建设项目工程总承包合同示范文本
相关推荐
坡面屋顶阵列前后间距计算和遮挡物影长计算公式V1.1
光伏专用电缆选型计算,汇流箱至逆变器电缆选型计算,短路电流计算,组串数量计算
风力发电经济评价模型案例
风电 水电效益测算分析表
分布式光伏工程报价参考计算表格
客厅电视背景墙立面图剖面图详图
下载文件
免费下载
标签
路桥
听课报告
弱电
胶合板标准
食品安全标准
个人工作计划
四川省标准
教学计划
辽宁省标准
压力容器标准
供销合作规范
黑色冶金规范
铁路运输规范
西藏藏族自治区标准
花键标准
疏水阀标准
个人自传
气象规范
环境保护规范
口罩标准
10j301
山西省标准
中心孔标准
轻工业规范
插头标准
质量管理体系标准
劳动和劳动安全规范
文物保护规范