
电梯井结构施工图(正规设计院共6张图)

电梯井结构施工图(正规设计院共6张图)

电梯井结构施工图(正规设计院共6张图)
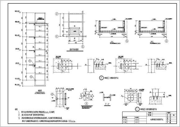
全套电梯井施工图主要包括:电梯剖面及柱拼接节点、电梯平面布置图及节点详图、屋顶楼板洞口布置图、檩条布置图、楼板洞口次梁布置图、楼板洞口配筋布置图等共6张图纸。绘制于2011年。

电梯井结构施工图(正规设计院共6张图)

电梯井结构施工图(正规设计院共6张图)

电梯井结构施工图(正规设计院共6张图)
全套电梯井施工图主要包括:电梯剖面及柱拼接节点、电梯平面布置图及节点详图、屋顶楼板洞口布置图、檩条布置图、楼板洞口次梁布置图、楼板洞口配筋布置图等共6张图纸。绘制于2011年。
声明:资源收集自网络或用户分享,仅供学习参考,如侵犯您的权益,请联系我们处理。
不能下载?报告错误