
65张楼梯大样图纸(剖面图、节点详图、大样图)

65张楼梯大样图纸(剖面图、节点详图、大样图)

65张楼梯大样图纸(剖面图、节点详图、大样图)
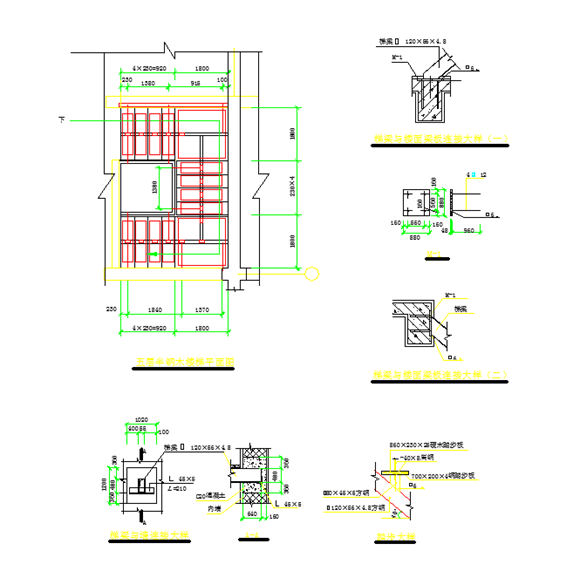
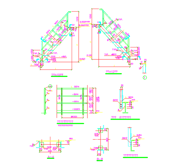
本图纸为65张楼梯大样图纸(剖面图、节点详图、大样图),内容详细,可供参考。

65张楼梯大样图纸(剖面图、节点详图、大样图)

65张楼梯大样图纸(剖面图、节点详图、大样图)

65张楼梯大样图纸(剖面图、节点详图、大样图)
本图纸为65张楼梯大样图纸(剖面图、节点详图、大样图),内容详细,可供参考。
声明:资源收集自网络或用户分享,仅供学习参考,如侵犯您的权益,请联系我们处理。
不能下载?报告错误