当前位置:首页  资料内容详情

某城市道路监控立杆设计图

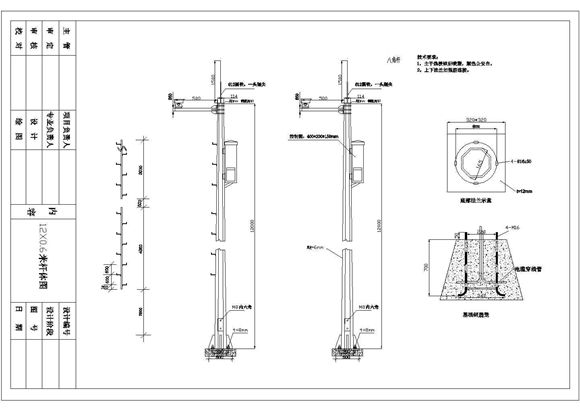
某城市道路监控立杆设计图 某城市道路监控立杆设计图 某城市道路监控立杆设计图 本图纸为:某城市道路监控立杆设计图,内容包括:12M塔基础图、12X0.6米杆体图、8X0.5米杆体图等,可供参考。

某城市道路监控立杆设计图

声明:本站为网络服务提供者及网络索引服务平台资源索引自网络/用户分享,如有版权问题,请联系站方删除。

不能下载?报告错误