
光伏项目支架基础设计图纸(共5张)

光伏项目支架基础设计图纸(共5张)

光伏项目支架基础设计图纸(共5张)
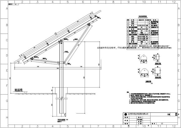
本资料为光伏项目支架基础设计图纸(共5张),其包含的内容为平面图,系统图等内容详实,可供下载参考。

光伏项目支架基础设计图纸(共5张)

光伏项目支架基础设计图纸(共5张)

光伏项目支架基础设计图纸(共5张)
本资料为光伏项目支架基础设计图纸(共5张),其包含的内容为平面图,系统图等内容详实,可供下载参考。
声明:资源收集自网络或用户分享,仅供学习参考,如侵犯您的权益,请联系我们处理。
不能下载?报告错误