
400m2双曲线冷却塔全套施工图

400m2双曲线冷却塔全套施工图

400m2双曲线冷却塔全套施工图
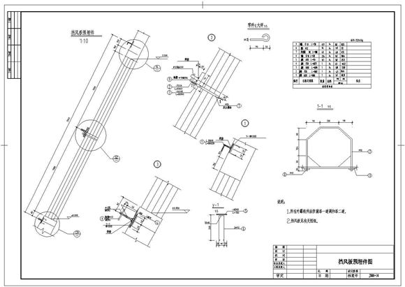
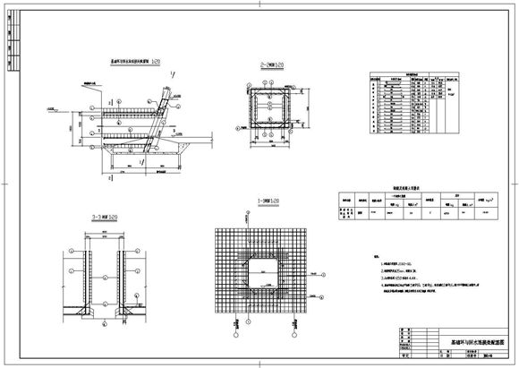
400m2双曲线冷却塔施工图,包括:分册总说明、基础布置图、基础环与回水连接处配筋图、基础挖方图、塔顶栏杆及避雷装置图、通风筒及塔顶刚性环配筋图、通风筒几何尺寸详图、挡风板预埋件图、自地面至塔门扶梯详

400m2双曲线冷却塔全套施工图

400m2双曲线冷却塔全套施工图

400m2双曲线冷却塔全套施工图
400m2双曲线冷却塔施工图,包括:分册总说明、基础布置图、基础环与回水连接处配筋图、基础挖方图、塔顶栏杆及避雷装置图、通风筒及塔顶刚性环配筋图、通风筒几何尺寸详图、挡风板预埋件图、自地面至塔门扶梯详
声明:资源收集自网络或用户分享,仅供学习参考,如侵犯您的权益,请联系我们处理。
不能下载?报告错误